Das hochwertige Fenstersystem mit einer umfassenden Palette von Lösungen
Die Schüco AWS-Fenstersysteme aus einer Grundtiefe von 70mm kombinieren eine gute Wärmedämmung mit den einzigartigen Vorteilen von Aluminium: Langlebigkeit und Stabilität
, schmale Stirnbreiten und eine Vielzahl von Ausführungen. Neben den nach außen öffnenden Lösungen oder Lösungen für leicht zugängliche Fenstertüren aus der Schüco AWS 70.HI-Standard-Fensterreihe gibt es mit dieser Grundtiefe auch für spezielle Konstruktionsanforderungen ein umfassendes Lösungsspektrum. Ob mit der SoftLine (SL) Entlüftungskontur für weichere Linien, den abgeschrägten Außenkonturen des Schüco AWS 70 RL.HI Fenstersystems oder der schmalen "Stahlkontur" des Schüco AWS 70 ST.HI Fenstersystems können optische Akzente gesetzt werden .
Produktvorteile
Ausgezeichnete Wärmedämmung mit einer Grundtiefe von 70mm: Uf-Werte von 1.6W / (m²K) (Stirnbreite 117mm)
Auch als nach außen öffnende Entlüftung oder als kurbelbetätigte Dreh- / Kipp-Lösung für große, schwere Einheiten erhältlich
Das Schüco-Fenster AWS 70 SL.HI (SoftLine) und das Schüco-Fenster AWS 70 ST.HI (Steel Contour)
Kompatibel mit dem Schüco ADS Türprogramm
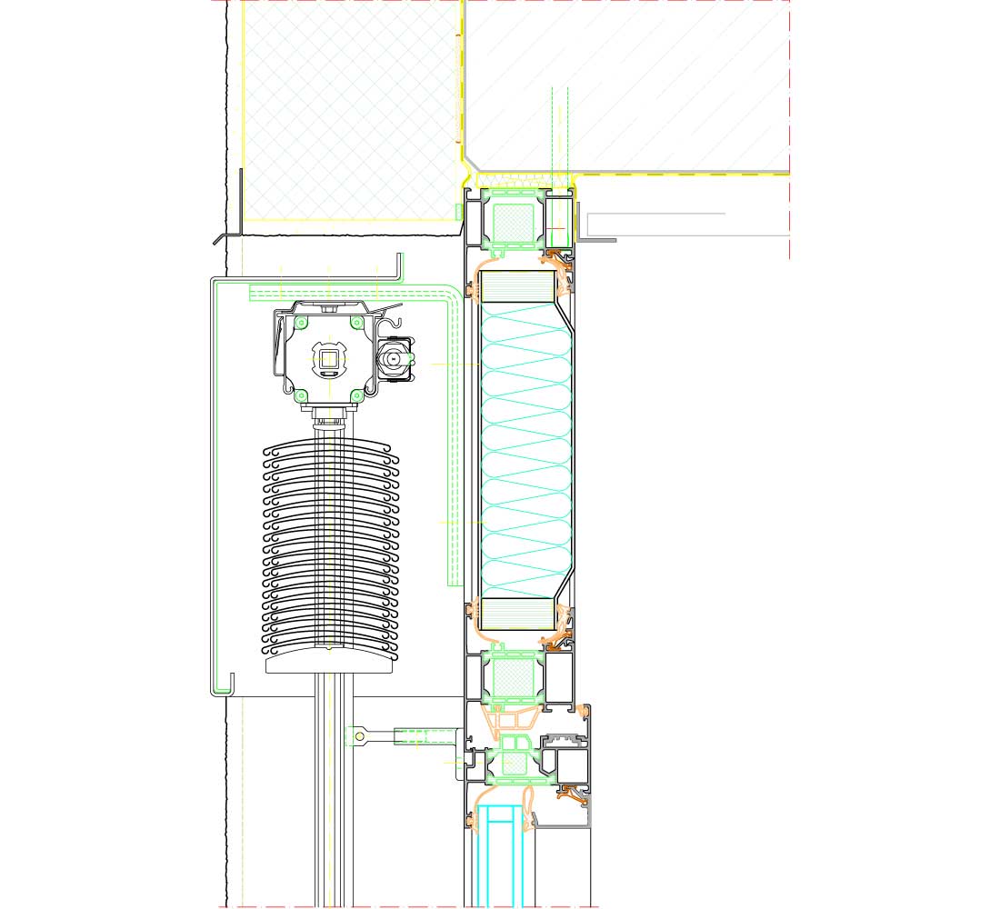
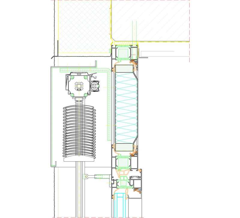
Schüco AWS 70.HI, hochwärmegedämmtes Aluminium-Fenstersystem
Mit 70 mm Grundtiefe.
Design-Merkmale:
Gestellseitiger Belüftungsrahmen raumseitig um 10 mm von der Rahmenkante gefalzt, bündig aufgesetzt.
Im Bereich der Dämmzone befindet sich die hochvolumige Hohlraumprofil-Mitteldichtung.
Das System muss mit quadratischen Glasleisten versehen werden.
Die Glasleisten werden mit Kunststoffklammern zum Ausgleich von Toleranzen montiert.
Für eine erhöhte Wärmedämmung müssen Glasdichtungen mit Rippen verwendet werden.
Profil Grundtiefen:
Außenrahmen, Pfosten, Heck 70 mm
Entlüftungsrahmen 80 mm
Profilbreite:
Außenrahmen, Boden 104 mm
Außenrahmen, seitlich und oben 79 mm
Pfosten 94 mm
Transom 94 mm
Entlüftungsrahmen (Fenster) 41 mm
Lüftungsrahmen (Fenstertür) 61 mm
Doppelventil-Profil (Fenster) 67 mm





